Contact
Lange Dreef 28
2820 Rijmenam
welkom@reuzegoed.be
+32 470 11 56 80
Instapklare, volledig gerenoveerde woning met 3 slaapkamers
Ben je op zoek naar een recent vernieuwde woning waar je zo kan intrekken? Dan is dit jouw kans! Ideaal gelegen net buiten het centrum van Mechelen (maar alles is wel te voet of met de fiets bereikbaar). Vlakbij alle voorzieningen zoals openbaar vervoer, winkels en scholen. Daarnaast is de straat net vernieuwd en is het er aangenaam vertoeven!
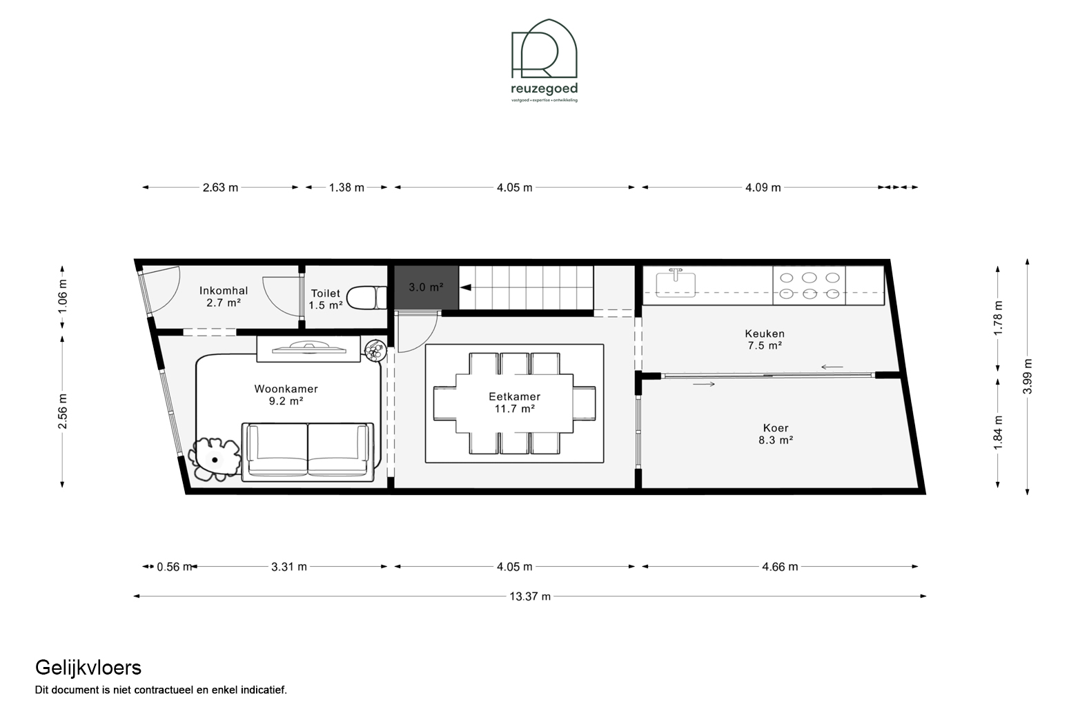
Deze prachtige woning is volledig gerenoveerd en voldoet aan alle moderne normen. Op het gelijkvloers vind je een inkomhal met apart toilet, een ruime leefruimte en een splinternieuwe keuken die volledig uitgerust is met alles wat je nodig hebt. Achteraan is er een gezellige koer, perfect om te ontspannen.
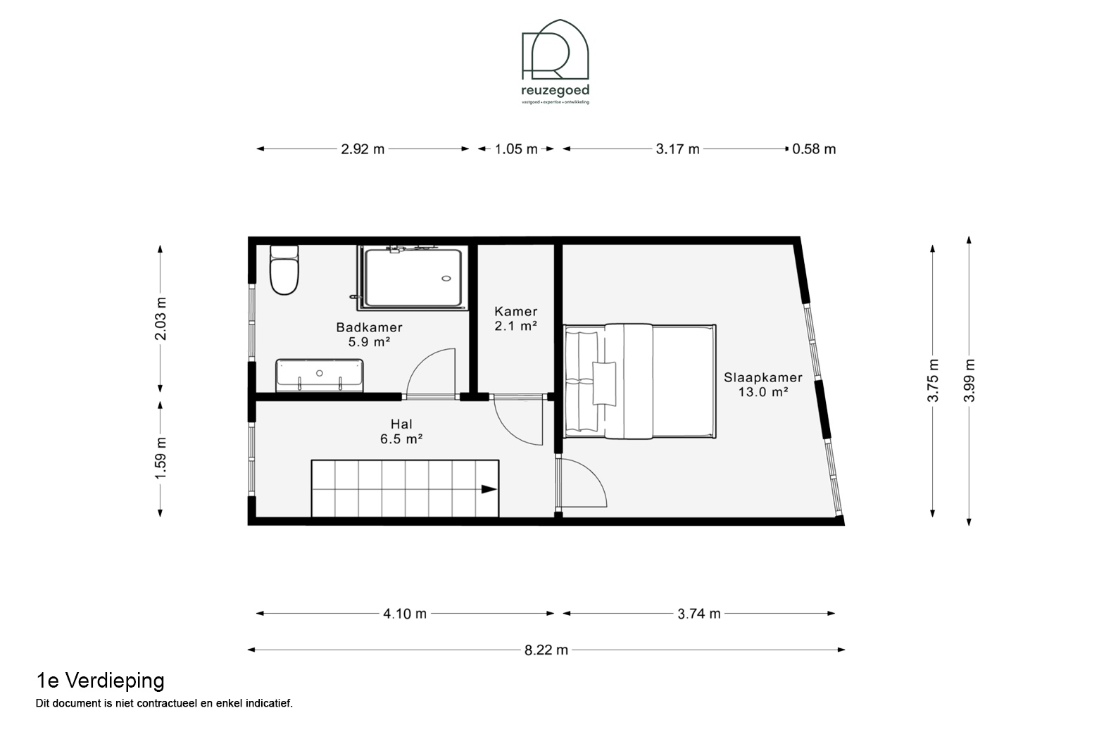
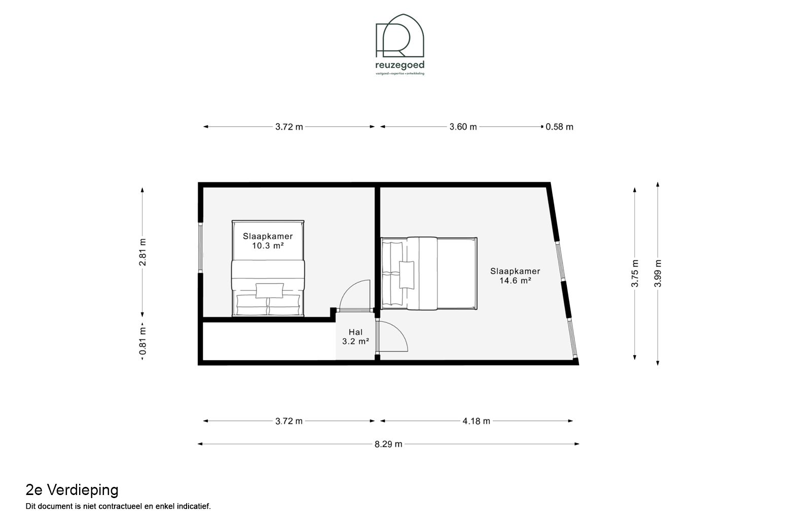
Op de eerste verdieping bevindt zich een volwaardige slaapkamer, een berging en een moderne badkamer met een ruime inloopdouche, dubbele wastafel en toilet. Op de tweede verdieping zijn er nog twee ruime slaapkamers. Dankzij de grondige renovatie is de woning energiezuinig (top EPC!), asbestvrij en elektrisch conform. Bovendien werd het dak volledig vernieuwd. Zoek je extra stockageplaats? Deze kan je vinden in de grote kelder!
Na de foto's is er ook nog een stalen deur met glas toegevoegd tussen de leefruimte en de hal, én een grote spiegel in de badkamer, zodat die helemaal af is!
Kortom, een instapklare woning met een moderne uitstraling en alle nodige comfort. Mis deze kans niet en plan je bezoek! Neem snel contact met ons op via 0470 11 56 80 of welkom@reuzegoed.be.
