Contact
Lange Dreef 28
2820 Rijmenam
welkom@reuzegoed.be
+32 470 11 56 80
Aan het charmante kerkplein van Bonheiden vind je deze ruime, te renoveren woning met karakter. Ooit bestond dit pand uit twee aparte woningen en een winkelruimte. Vandaag biedt het een zee aan mogelijkheden voor wie groot en centraal wil wonen, of een combinatie van wonen en werken zoekt.
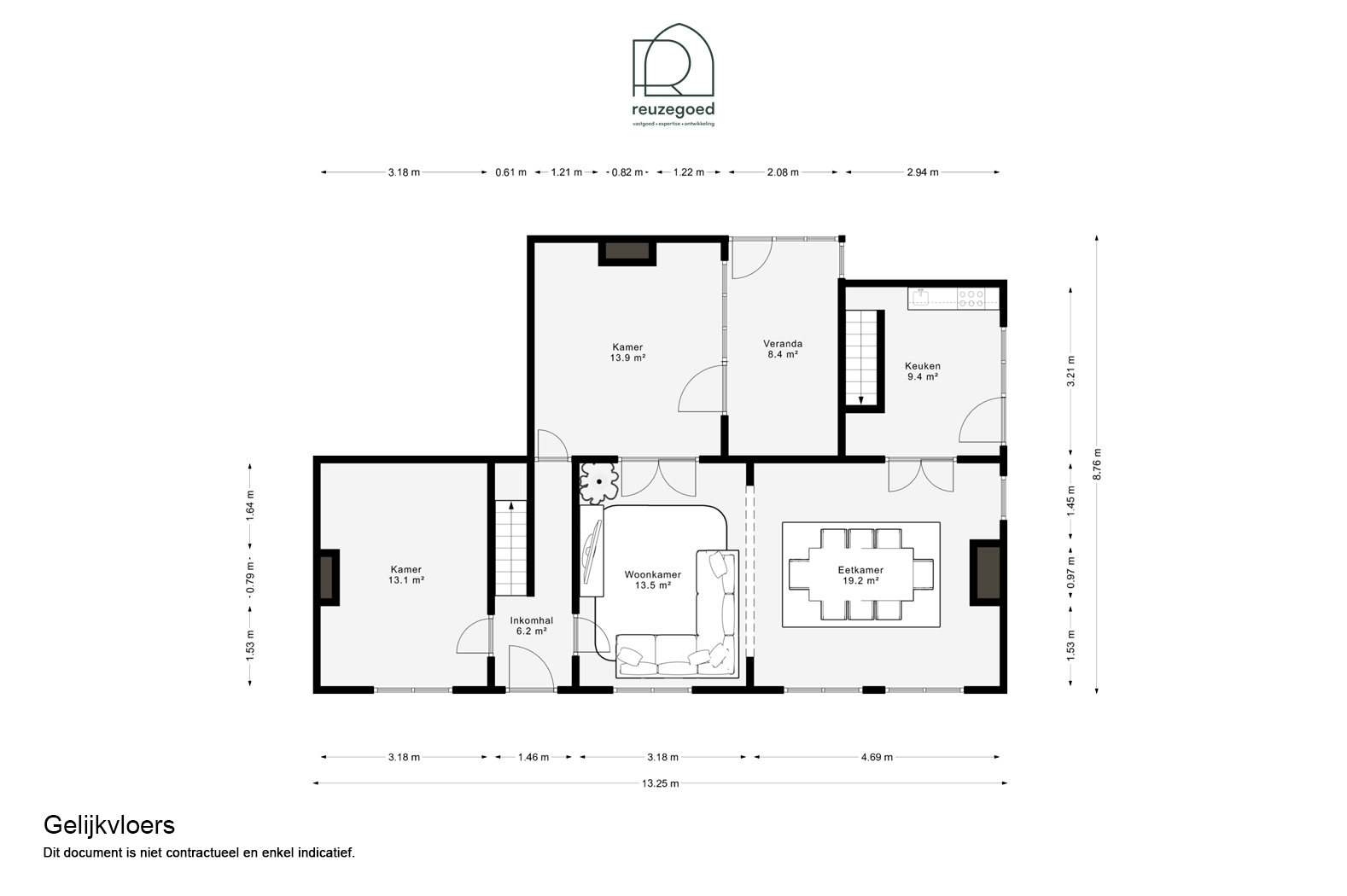
De beschermde gevel ademt geschiedenis en charme, terwijl het royale binnenvolume uitnodigt tot creatief herdenken. De woning omvat onder meer twee leefruimtes, zes slaapkamers en een keuken, waardoor de basis voor een groot gezin, kangoeroewoning of woon-werkconcept al aanwezig is.
Daarnaast zijn er twee bijgebouwen: één waarin vroeger een bakkerij gevestigd was, en een ander met een speelruimte en badkamer ideaal om om te vormen tot atelier, praktijk of gastenverblijf.
Uniek voor deze ligging is de ruime tuin, die zorgt voor rust en privacy, terwijl je toch vlak bij winkels, scholen en openbaar vervoer woont. Het is bovendien één van de laatste grote percelen in het centrum van Bonheiden.
Deze eigendom vraagt om een grondige renovatie, maar biedt des te meer potentieel. Of je nu droomt van een stijlvolle gezinswoning, een handelspand met woonst of een vernieuwend concept samen met de gemeente wordt bekeken wat allemaal mogelijk is.
Kortom: een uitzonderlijke opportuniteit voor wie een project met ziel zoekt, in het kloppend hart van Bonheiden.
Contacteer ons op welkom@reuzegoed.be of op 0470 11 56 80 voor een bezoek!
