Contact
Lange Dreef 28
2820 Rijmenam
welkom@reuzegoed.be
+32 470 11 56 80
Unieke loft in Mechelen wonen in de iconische Usine à Vapeur
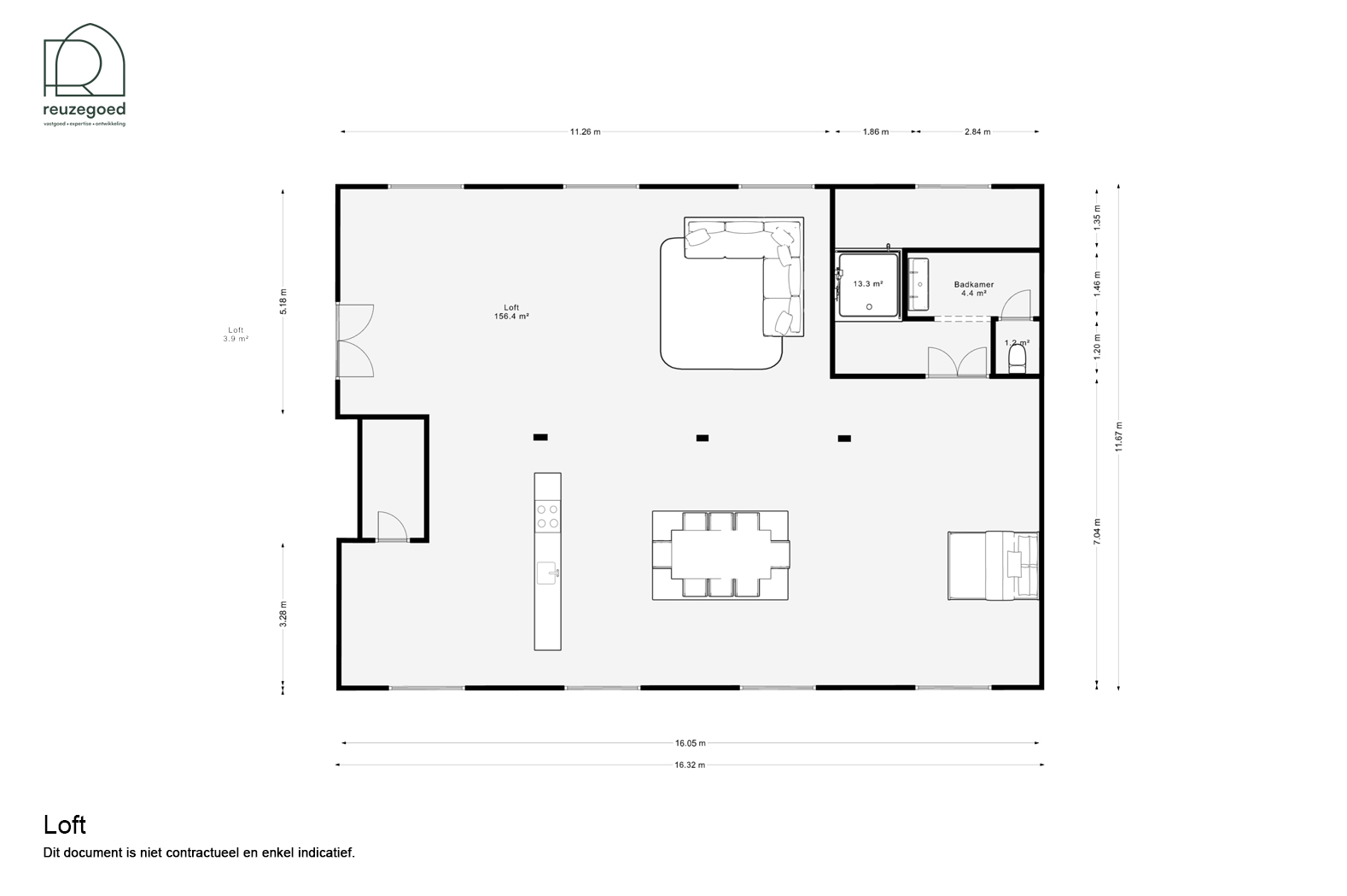
Op zoek naar een karaktervolle woonplek met tonnen potentieel? In de voormalige meubelfabriek Usine à Vapeur, volledig heringericht tot lofts en appartementen in 1996, vindt u deze uitzonderlijk ruime loft van bijna 200 m². De authentieke industriële stijl met stoere kolommen, balken en robuuste muren zorgt voor een unieke sfeer die je nergens anders vindt.
Momenteel is de ruimte ingericht als ruim kantoor, maar dankzij het open grondplan, de aanwezige keuken en de aansluitingen voor een badkamer kan deze loft eenvoudig omgevormd worden tot een spectaculaire woonloft. Met een paar creatieve ingrepen creëert u hier een woonomgeving die even uniek als indrukwekkend is.
Bovendien is het pand asbestveilig en beschikt het over een zeer gunstig EPC, wat de verbouwing louter reduceert tot stilistische voorkeuren.
Mis deze kans niet om te wonen in een stuk Mechelse geschiedenis en contacteer ons op welkom@reuzegoed.be of 0470 11 56 80.
