Duplex appartement te koop in centrum Bonheiden - 2 ruime slaapkamers - instapklaar en luxueus afgewerkt
In het hart van Bonheiden, maar op een rustige locatie, bevindt zich dit prachtig afgewerkte duplex appartement, gelegen op de eerste en tweede verdieping van een verzorgd gebouw uit 2004. Dankzij het uitstekende onderhoud verkeert het appartement in quasi nieuwbouwstaat.
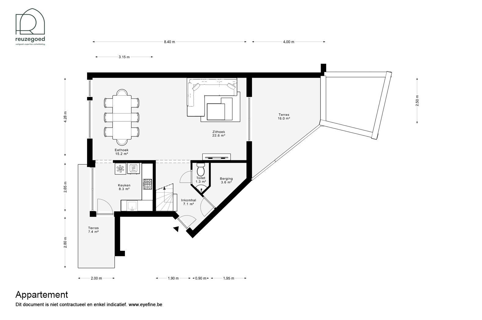
Bij het betreden van het appartement komt u in de inkomhal, die toegang biedt tot een apart gastentoilet en een praktische berging (momenteel ingericht met douche). Aansluitend bevindt zich de ruime en lichtrijke leefruimte, die geniet van natuurlijke lichtinval langs zowel de voor- als achterzijde. Vooraan kijkt u uit op aangenaam groen, wat zorgt voor een rustige woonbeleving. De open keuken is hoogwaardig afgewerkt en voorzien van alle comfort. Zowel aan de voor- als achterzijde beschikt het appartement over een terras.
Op de bovenverdieping bevinden zich twee bijzonder ruime slaapkamers (beiden groter dan 15 m², wat zelden voorkomt), waarvan één met een extra aansluitende ruimte die perfect kan dienen als dressing of bureau. Verder is er een apart toilet, een zeer ruime badkamer met ligbad en een bijkomende berging die ideaal is als wasruimte.
Het gebouw beschikt over een lift en het duplex appartement is bovendien uitgerust met een traplift naar de bovenverdieping, wat extra comfort biedt.
Bij het appartement hoort een ruime ondergrondse parkeerplaats, inbegrepen in de prijs. Aansluitend is er een uitzonderlijk grote kelderberging, die perfect kan dienen als hobbyruimte of werkplaats.
Kortom, een instapklaar en kwalitatief afgewerkt appartement op een toplocatie in Bonheiden.
Voor meer informatie of een bezoek contacteer ReuzeGoed op 0470 11 56 80 of via welkom@reuzegoed.be





































