Unieke eigendom met veel potentieel te Keerbergen, voormalig café en woning samengevoegd tot één ruime woning
Ben je op zoek naar een woning met véél ruimte én véél mogelijkheden? Dan is dit pand in het hart van Keerbergen zeker een bezoek waard. Oorspronkelijk bestond het uit een café en een aparte woonst, die later werden samengevoegd tot één grote woning wat resulteert in een verrassend ruim geheel boordevol potentieel.
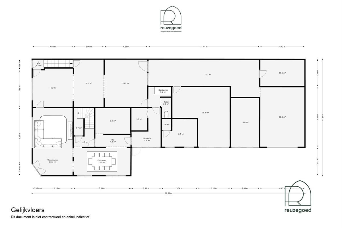
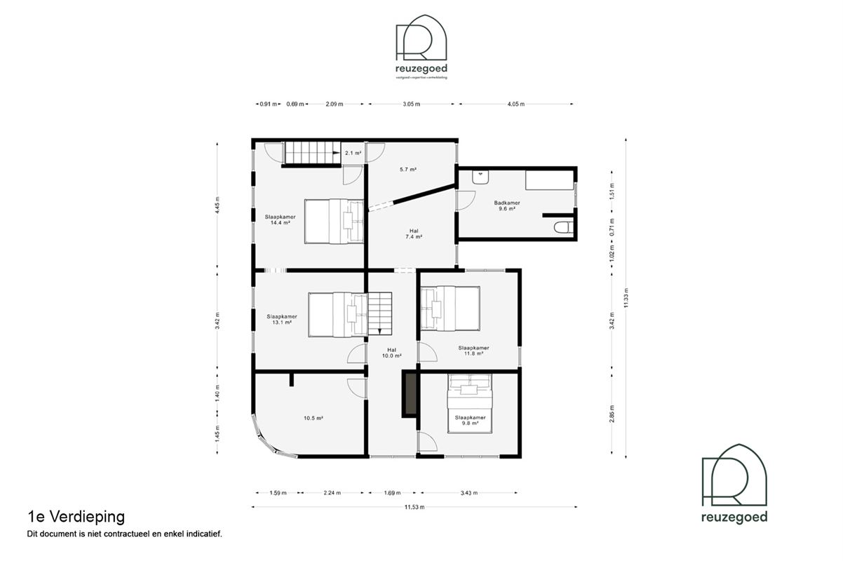
Indeling & mogelijkheden
Op het gelijkvloers tref je tal van grote en kleinere ruimtes, ideaal voor wie graag veel leefruimte heeft of op zoek is naar een pand met polyvalente invulling. Kijk zeker naar de plannen om de indeling goed te begrijpen de mogelijkheden zijn oneindig! Boven zijn er maar liefst vijf (of meer) slaapkamers, perfect voor grote gezinnen, co-housing, een praktijk aan huis of andere creatieve invullingen.
Te renoveren
De woning dient grondig gerenoveerd te worden. Ideaal voor de handige harry of projectontwikkelaar die een pand naar eigen smaak wil omtoveren tot een warme thuis of stijlvolle investering.
Interessant perceel met ontwikkelingspotentieel
Het perceel biedt naast de ruime woning ook interessante ontwikkelingskansen. Volgens het Ruimtelijk Uitvoeringsplan (RUP) is het mogelijk om het perceel op te splitsen in twee bouwgronden: één voor een open en één voor een halfopen bebouwing.
Samengevat:
- Voormalige café + woning, samengevoegd tot één grote eigendom
- Zeer ruime woning met 5+ slaapkamers
- Gelijkvloers met veel kamers en mogelijkheden
- Grondige renovatie nodig
- Interessante bouwgrond mogelijkheden volgens RUP
- Veel werk, maar nog meer potentieel!
Grijp deze kans om een uniek stuk vastgoed met geschiedenis én toekomstmogelijkheden in handen te krijgen. Contacteer ons voor meer info of een bezoek ter plaatse!














































